Porit für energieeffizienten
Schulanbau
Die Förderschule Krummhörn erhielt einen Werkraumneubau
Die Wahl des Wandbaustoffs gehört zu den grundlegenden Entscheidungen des Bauherren und Architekten bei einem Bauvorhaben. Durch die Fortschreibung der Energieeinsparverordnung muss eine Gebäudehülle heute immer höhere Anforderungen erfüllen.
Ein Mauerwerk aus Porit Porenbeton überzeugt nicht nur durch eine sehr gute Wärmedämmung, sondern bietet bei vergleichs-
weise niedrigem Gewicht eine hohe Druckfestigkeit und damit Tragfähigkeit und erfüllt gleichzeitig die gesetzlich geforderten bauphysikalischen Eigenschaften wie Schall- und Brandschutz. Zudem sorgt die gute Wärmespeicherfähigkeit von Porenbeton für ein gesundes und behagliches Raumklima.
Förderschule Krummhörn
Die Förderschule Krummhörn in Pewsum zählt zu den Förderschulen in Niedersachsen, die die sonderpädagogische Grundversorgung aller Kinder mit Förderschwerpunkt Lernen, Sprache oder sozial-emotionale Entwicklung im Primarbereich bereitstellt. Mit dem Werkunterricht möchte die Förderschule den Schülerinnen und Schülern Perspektiven aufzeigen, der Werkunterricht im neuen Anbau ist somit Teil der intensiven Berufsvorbereitung und Berufsförderung auf dem Weg in ein aktives Erwerbsleben. In der Förderschule in Pewsum werden zurzeit 50 Kinder und Jugendliche in den Klassen 5 - 9 unterrichtet.
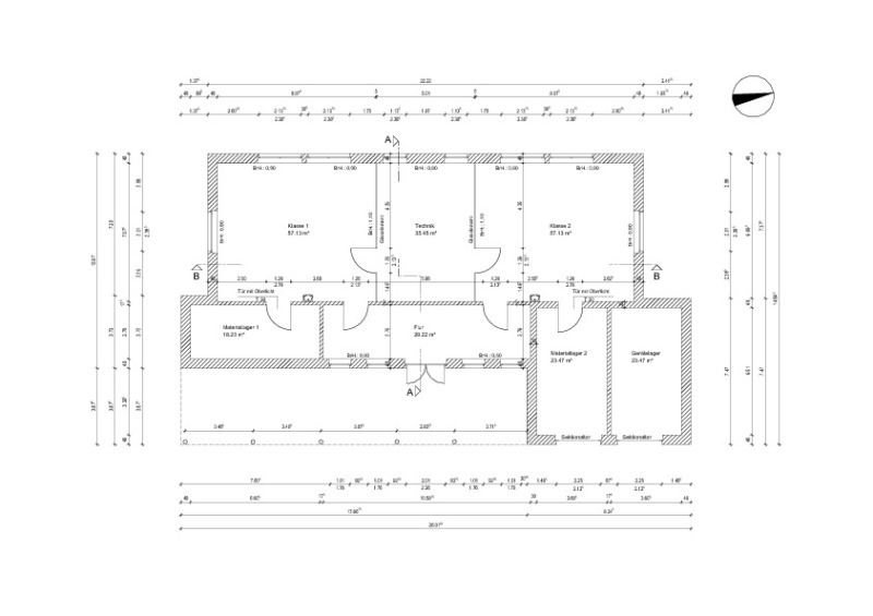
Nutzungsbereiche klar gegliedert
Während sich die Schule allgemein in einem sehr guten baulichen Zustand befindet, war das alte Werkraumgebäude aus der Vorkriegszeit in einem eher desolaten Zustand. Entwurf, Planung und Bauleitung für alle Arbeiten lagen beim Technischen Gebäudemanagement des Landkreises Aurich, der auch gleichzeitig Träger der Schule ist. In enger Zusammenarbeit mit der Schulleitung wurde der Neubau nach folgenden Kriterien geplant:
n Es entstehen zwei Werkräume mit je rd. 57 m² Grundfläche.
n Mittig zwischen den Werkräumen ist der Maschinenraum angeordnet, der ab Oberkante Brüstung voll verglaste Trennwände besitzt.
n Jeder Werkraum hat einen ihm zugeordneten Lagerraum.
n Die Belichtung der Werkräume erfolgt von der Nordseite her. Von daher besteht gleichmäßiger Lichteinfall und es kann auf Sonnenschutzvorrichtungen verzichtet werden.
n Ein zusätzlicher Geräteraum nimmt die Maschinen für die Pflege der Freiflächen auf.
n Großer Wert wurde auf die Umsetzung des Wunsches der Schule gelegt, im Freien – geschützt unter einem Dach – an größeren Objekten bauen und so den Werkunterricht ergänzen zu können. Die durch den großen Dachüberstand geschaffene Fläche beträgt rd. 68 m².
n Der Energieverbrauch des alten Werkraumgebäudes lag bei rd. 350 kWh/m²a. Der Neubau hat einen Kennwert von rd. 93 kWh/m²a, d.h. nur noch rd. 30 % des bisherigen Energieverbrauchs.
Monolithischer Wandaufbau
Entgegen der in Ostfriesland traditionellen zweischaligen Bauweise eines Mauerwerks entschieden sich die Verantwortlichen für eine monolithische Bauweise mit Porenbeton. Ein in dieser Region seltener Lösungsansatz, wie man an der z. Zt. stattfindenden Diskussion im Internet auf der Plattform des Landkreises Aurich erkennen kann. Ein weiterer Anspruch bei der Umsetzung des Projektes war es, ökologisch unbedenkliche und wohngesunde Materialien zu verwenden.
Für das Projekt „Neubau Werkraum Förderschule Pewsum“ fiel die Wahl auf Porenbeton für die Außenwände und Kalksandstein für die Innenwände. Porenbeton bietet ein ausgewogenes Verhältnis von Wärmedämmung zu Wärmespeicherung. Daraus ergibt sich ein ausgeglichenes und gesundes Raumklima. Beim Bau des Werkraumgebäudes wurde eine hoch wärmedämmende Gebäudehülle erstellt, ohne dass eine zusätzliche Wärmedämmung notwendig wurde. Eingesetzt wurden Dämmsteine mit einer Wanddicke von 480 mm und einem U-Wert von 0,18 W/m²K. Bereits in der klassischen Wandkonstruktion mit 365 mm Wandstärke werden mit diesem Baustoff die seit Oktober 2009 gültigen Anforderungen der EnEV mit einem U-Wert von 0,23 W/m²K unterschritten. Somit geht der hier erstellte Standard über die Anforderungen der EnEV 2009 hinaus und orientiert sich heute schon an den Vorgaben der zur Zeit entstehenden EnEV 2012. Durch Einsatz massiver Baustoffe stehen hier zudem gegenüber einem leichten Holzbau mehr Speichermassen zur Verfügung. Alles, was im Gebäude an Wärmeenergie entsteht oder über die Fenster solar eingestrahlt wird, wird in den Wänden zwischengespeichert und amplitudenverschoben wieder abgegeben.
Bauen mit Porenbeton spart
Für das Multitalent Porit Porenbeton sprechen mit Blick auf das gelungene Gebäude die massive und dennoch anpassungsfähige Bauweise, die jeder architektonischen Idee gerecht werden kann, und die bauphysikalischen Eigenschaften, zu denen neben der Wärmedämmung auch der hervorragende Brandschutz sowie ein wirksamer Schallschutz gehören. Nicht weniger von Bedeutung ist die mit diesem Baustoff erreichbare Wirtschaftlichkeit. Denn die leichten, massiven großformatigen und mit Nut und Feder versehenen Porit XL-Elemente wurden millimetergenau und vollfugig in Dünnbettmörtel schnell und dadurch sehr wirtschaftlich mit Hilfe eines Minikrans von einem Mann auf der Baustelle versetzt. Da sich das Technische Gebäudemanagement schon frühzeitig mit den Fachberatern des Porit-Herstellers Emsländer Baustoffwerke GmbH zusammensetzte, konnte ein für alle Beteiligten in jedem Punkt überzeugendes Bauvorhaben realisiert wer-
den. Die Kosten für den Neubau belaufen sich auf 369.000 €. Die Nutzfläche beträgt rd. 250 m² bei einem umbauten Raum von rd. 1.150 m³.
[www.porit.de]
... geplant wurde in enger Zusammenarbeit mit der Schulleitung
